Схема размещения розеток на кухне
Планируя перенос розеток и монтаж новых точек, следует учитывать уровни, на которых будут находиться потребители энергии.
- Нижний: холодильник, стационарная плита, стиральная и посудомоечная машины. Некоторые проекты предусматривают установку электрических измельчителей и фильтров для воды под мойкой.
- Средний. Здесь подразумеваются все оборудование и приборы, которые устанавливаются на столешнице и над ней — кофеварки, скороварки, лампы для подсветки, кухонные комбайны и микроволновые печи.
- Верхний. Здесь располагают вытяжку, кондиционер и телевизор. На перспективу можно предусмотреть вероятность оборудования кухни бра или светодиодной лентой.
Исходя из такой планировки следует делать три независимые линии для снабжения электричеством каждого яруса. Используя мощный медный кабель сечением 2,5 мм, можно последовательно соединить все модули с минимальными расходами на материал и предварительные работы.
Лучшие варианты размещения
Удобство пользоваться приборами на кухне зависит от правильного расчета количества розеток и схемы подключения
Поскольку в районе рабочего стола находится большая часть потребителей электроэнергии, его нужно задействовать максимально. Если будет использоваться плоскость декоративного фартука, нужно предусмотреть, чтобы блоки не нарушили сюжет нанесенного на поверхность изображения.
Следующая рекомендация касается решения о том, как лучше распределить точки по фартуку и столешнице. Целесообразно ставить розетки средней линии так, чтобы они находились симметрично, на одинаковом уровне и расстоянии друг от друга. При этом нижнюю линию можно сделать скрытой, используя свободное место между тумбами и стеной.
Для верхнего яруса следует устанавливать розетки так, чтобы они не бросались в глаза, соблюдая при этом правила электротехнической безопасности.
Чтобы не ошибиться в выборе схемы размещения приборов, следует сделать на ее основе несколько эскизов в цвете и масштабе. После их сравнения остается выбрать самый эффективный и продуктивный вариант. При этом нужно учитывать возможность прокладки проводки открытым способом. Это разрешается делать за шкафами под столешницей.
Количество розеток
Проводя расчет, сколько розеток должно быть на кухне, рекомендуется придерживаться правила разумной достаточности. Излишек приведет к загромождению рабочих поверхностей, лишним тратам времени, сил и денег на установку. Недостаток тоже имеет свои минусы — придется использовать удлинители и тройники, что недопустимо по СНиП.
Чтобы не ошибиться при планировании, нужно учесть все приборы, которые будут подключены постоянно и добавить к ним половину того, что задействуется периодически. Дополнительно следует добавит 2-3 резервных гнезда.
Расстояния и места размещения
Высота установки розеток и выключателей на кухне
Высота розеток над столешницей на кухне выбирается не только по критериям красоты или удобства. Необходимо помнить, что на рабочей поверхности проводится работа с жирами, маслами и водой. Неаккуратность или случайность приводит к разливу жидкостей. Если розетки находятся на уровне столешницы, велик риск короткого замыкания и поражения человека током.
Расстояние между точками и потребителями энергии должно быть в таких пределах:
- холодильник — 5-20 см;
- розетки рабочей зоны и над столешницей — 10-30 см;
- вытяжка — 15-40 см;
- варочная и духовка — 30-50 см;
- посудомойка — 10-30 см;
- телевизор на кухне 5-50 см;
- кондиционер — 10-80 см.
Эти параметры обусловлены уровнем тепла, который создает техника, а также вероятностью возникновения протечек при аварийных ситуациях.
Интеллектуальные технологии: новый мир розеток
Яркие цветные розетки не только хорошо смотрятся в детских комнатах, они также могут устанавливать новые акценты в спальне. Это можно увидеть в дизайнерских программах при подготовке дизайн проекта: можно просмотреть трехмерное фото розетки в спальне на стене.
Кроме того, определенные функции могут быть назначены цветным розеткам. Например, можно установить разноцветные розетки по бокам кровати для подключения ламп для чтения, розетки в спальню под телевизор и для компьютера.
Поскольку розетка используется часто, ощущение также играет решающую роль: поверхность должна быть приятной. Поэтому помимо обычного пластика существуют также розетки со стеклянными поверхностями, а также из нержавеющей стали или фарфора.
Расположение розеток – как и где лучше расположить в разных комнатах помещениях (70 фото)

Одной из самых ответственных частей ремонта помещения является правильное размещение электропроводки. При составлении схемы размещения розеток нужно учитывать такие важные аспекты, как размеры помещения, суммарное количество всех выключателей и розеток и, безусловно, то, как расставлена мебель.
Правила по размещению электропроводки
Строгих ограничений не существует. Однако, есть некоторые требования по установлению розеток, например, в ванной комнате или же в промышленных помещениях. А также есть рекомендации по установке выключателей и розеток в квартире, но придерживаться их или нет – дело сугубо ваших потребностей и вкусов.
В Советском Союзе (во времена старых традиций) считалось, что розетка должна находиться на расстоянии 90 см от пола, а выключатель – на расстоянии 160 см (1,6 м).
Такие стандарты создавали удобство эксплуатации, поскольку для того, чтобы достать до уровня выключателя, не нужно было нагибаться или присаживаться. Благодаря этому, даже сейчас многие люди придерживаются именно таких правил.
Новые традиции – евростандарт
Вместе с определением «Евроремонт» из недалёких стран к нам пришёл такой термин, как «Евростандарт» расположения розеток. Что же предполагает европейский стандарт? Эти правила ни в коем случае не ограничивают высоту комнаты или общее число выключателей и розеток в помещении жилища, а лишь помогает рекомендовать правильный способ монтажа в опасных помещениях с учётом мер безопасности.
В соответствии с европейскими стандартами розетки и выключатели следует размещать следующим образом:
Выключатель – на расстоянии 90 см от пола (если заметить, по старым традициям это было место для розетки, однако как считают люди нынешнего поколения, таким образом можно выключать или же включать свет без поднятия руки).
Розетка же теперь располагается на расстоянии 30 см от пола, что позволяет удобно прятать провода, которые хотелось бы скрыть от посторонних глаз.
На всех фото, что представлены по тексту и в нашей галерее в конце, можно увидеть, чем отличается расположение розеток раньше и сейчас.
Помните, что диаметр штырей европейских розеток значительно больше диаметра штырей отечественных розеток, а сила принимаемого тока составляет примерно от 10 до 16 А, тогда как у российских – лишь 10 А.
Поэтому если вы хотите использовать приборы с большей мощностью, то вам безусловно стоит провести в помещении монтаж европейских розеток.
Планирование монтажа розеток и выключателей в помещении
Любое помещение распланировано своеобразно, а это значит, что для каждой комнаты нужно подобрать варианты расположения электроустановок.
Коридор
В каждой квартире есть небольшая прихожая, где тоже нужно грамотно разместить выключатели, так как это та комната, в которую человек заходит в первую очередь. Обычно в коридоре принимаются за необходимость две или же три розетки.
Также в прихожей будет полезно расположить распределительный щиток, выключатель (или блок выключателей), электросчётчик и так далее.
Спальня и гостиная
Лучше всего будет разместить по розетке с каждой стороны спального места. Высота от пола – примерно 70 см, так как именно в таком положении к розетке можно будет подключить, например, прикроватную лампу, а также зарядить какое-либо устройство.
Что касается выключателя, то он должен быть размещён у входной двери. Также приветствуется расположение дополнительного блока розеток над рабочим столом (примерно на 30 см от его уровня).
В гостиной или зале обязательно будет нужно небольшое количество розеток за 130 см над полом. Их можно спрятать за телевизор. Безусловно, наличие запасной розетки также предполагается. Выключатель, как и в спальне, должен быть возле входной двери.
Ванная комната и туалет
Ни для кого не секрет, что ванная – это комната с повышенной влажностью воздуха, поэтому все розетки и выключатели должны быть предусмотрены для таких условий (иметь уровень защищённости не менее IP44).
Категорически запрещено располагать устройства на расстоянии менее 60 см от ванной или душевой кабинки, а также ниже 15 см от уровня пола (так как возможны небольшие потопы в такой комнате).
Так, используя все навыки правильного расположения розеток и выключателей в разных комнатах помещения, вы можете обезопасить себя и своих близких и избежать переделывания проводки в дальнейшем.
Спальня и гостиная
Лучше всего будет разместить по розетке с каждой стороны спального места. Высота от пола – примерно 70 см, так как именно в таком положении к розетке можно будет подключить, например, прикроватную лампу, а также зарядить какое-либо устройство.
Что касается выключателя, то он должен быть размещён у входной двери. Также приветствуется расположение дополнительного блока розеток над рабочим столом (примерно на 30 см от его уровня).
В гостиной или зале обязательно будет нужно небольшое количество розеток за 130 см над полом. Их можно спрятать за телевизор. Безусловно, наличие запасной розетки также предполагается. Выключатель, как и в спальне, должен быть возле входной двери.
Расположение розеток в спальне
Комната для сна уже давно перестала помещением, в котором ставятся лишь кровать и тумбочка. Ещё до появления электричества в неё были перенесены туалетные столики и гардероб — ведь истинным леди и джентльменам не пристало выходить из спальни в одной пижаме. А в современной квартире эта комната может и роль кабинета на себя примерить. Или полноценной зоны отдыха, которую без мультимедиа-устройств представить невозможно. И всё это освещается электричеством или питается ним.
Из чего исходить при выборе расположения
Когда вопрос формирования оптимальной электрической разводки поднимается во время ремонта в давно обжитой квартире, решить его немного проще — владельцы уже знают, что и где у них расположено. Новосёлам труднее. Им предстоит определиться с меблировкой спальни. А ведь именно от неё и следует отталкиваться.

Для того чтобы потом не мучиться с «криво установленной» розеткой, необходимо:
Вооружиться рулеткой, карандашом и парой листов бумаги. Провести замеры мебели, которая будет размещена в спальне. Сориентироваться с местом её установки. Определиться с электротехникой
Важно учесть количество и расположение всех устройств, которые будут находиться в спальне — от настольной лампы до утюга, прилагающегося к вмонтированной в гардероб гладильной доски. Результаты всех замеров, как и перечень мебели с потребляющими электричество устройствами, следует записать на одном листе
На втором желательно схематически зарисовать будущую планировку спальни. После этого можно приступать к продумыванию электрической разводки
Результаты всех замеров, как и перечень мебели с потребляющими электричество устройствами, следует записать на одном листе. На втором желательно схематически зарисовать будущую планировку спальни. После этого можно приступать к продумыванию электрической разводки.
Самое удобно и практичное положение розеток спальне
Сначала продумывается «постоянное» подключение — где и как будут размещаться приборы, которые редко отключаются от сети: настольные лампы, подсветка туалетного столика, телевизор, компьютер и подобная им техника. Под каждое из этих устройств отводится отдельная розетка, которую можно скрыть.

Затем следует планирование «временного» подключения — мобильные телефоны, ноутбук, фен, утюг и прочее. Под них проектируются розетки в местах наиболее частого использования. Эти разъёмы должны находиться на удобном для хозяев уровне.
Последний этап — сведение результатов двух предыдущих. На примере прикроватного пространства это выглядит приблизительно так:
- Тумбочка, на которой стоит торшер, может скрывать предназначенную для него розетку.
- Владелица любит «посидеть» в сети не выбираясь из-под одеяла, значит у изголовья должна быть точка подключения зарядного устройства. Скрывать её за мебелью нельзя.
- Результат: нужна двойная розетка с удобным доступом. Её располагают или над столешницей стоящей впритык к кровати тумбочки, или на комфортном уровне в пространстве между отстоящей мебелью.
Советы практика
Под розеткой не всегда стоит понимать сеть питания 220 В. Если предполагается использование гаджетов, для их подзарядки можно вывести USB порт, встроенный в привычную рамку.

Под «скрытыми» подразумеваются убранные из поля зрения точки подключения. Для компьютерной техники это разъёмы на высоте 15-35 см от пола. Для телевизоров и сопутствующих им мультимедиа-устройств — около 130 (так, чтобы розетка скрывалась за ними).
Для периодического использования обеспечивается подключение к электросети на высоте 90-100 см. Это правило работает даже если розетка проектируется без привязки к мебели.
И самое важное: при планировании электрической разводки необходимо учитывать вероятность одновременного использования всех розеток. По этой причине не стоит пытаться обойтись минимальным их количеством. В противном случае может возникнуть ситуация, когда снова понадобится удлинитель или тройник
В противном случае может возникнуть ситуация, когда снова понадобится удлинитель или тройник.
Разводка электричества в квартире. Правила высоты розеток в спальне
Разводку электричества следует планировать на стадии ремонта, предварительно определив, какая будет в квартире расстановка мебели и бытовых приборов. Тогда провода можно будет проложить внутри стен, а выводы для выключателей и розеток сделать в максимально подходящих местах.
Прокладка скрытой проводки – дело пыльное и грязное, поэтому работу стоит выполнить на начальной стадии ремонта
Оптимальная электрическая схема для спальни
Не существует универсальной схемы разводки электричества для спальни. Ее правильный вариант должен быть разработан для каждого конкретного случая с учетом расположения кровати, туалетного столика, одежного шкафа, телевизора и кондиционера.
Оптимальная электрическая схема для спальни, заранее продуманная и согласованная с ее потенциальными обитателями, сделает пользование электроприборами рациональным и комфортным.
Возле двери и около спальных мест рекомендуется поставить проходные выключатели основного освещения, чтобы входя в комнату можно было включить свет и потушить его, не вставая с кровати.
Схема расположения розеток в спальне для двоих
Для локальной подсветки туалетного столика предусматривается выключатель в случае использования бра, вмонтированных в стену по обеим сторонам от зеркала. Если источник освещения – настольные лампы, для них нужны две розетки, спрятанные за столиком.
Если настенные светильники предусматривают скрытый подвод электричества, необходимо заранее продумать расположение выключателей
В спальне, функционально совмещенной с кабинетом, имеется рабочее место, где как правило присутствует компьютер: системный блок, монитор, колонки и, скорее всего, Wi Fi роутер. Вот еще минимум четыре электроточки, которые следует включить в схему.
Высота установки розеток в спальне
По евростандартам, розетки нужно размещать в спальне на высоте 30 см от пола, а в 90 см от него – выключатели. С их помощью даже маленькие дети смогут самостоятельно включать свет, а низкая розетка удобна для подключения пылесоса или торшера.
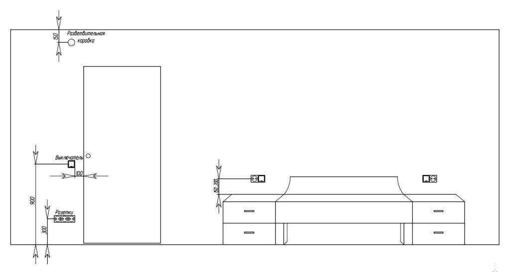
Схема размещения розеток над прикроватными тумбами
Согласно стандартам, принятым еще в советское время и не забытым до сих пор, штепсельный разъем должен находиться на уровне 90 см, а выключатель – на отметке 160 см от пола. Это удобно для тех, кто не хочет лишний раз наклоняться.
Количество розеток около двухспальной кровати увеличивается вдвое
Есть также рекомендации по установке розеток в зависимости от расположения предметов мебели и стационарных электроприборов, а именно:
- 0-70 см от пола возле прикроватных тумбочек;
- 90 см от пола около письменного стола;
- на уровне от 150 см и выше для телевизора, в зависимости от высоты его крепления к стене.
Розетки по возможности должны находиться вне пределов видимости, если это не мешает доступу к ним.
Неплохо будет учесть и мощные розетки у окна спальни, которые пригодятся для подключения обогревателя на случай сильных морозов
Особенности и правила установки розеток в спальне
Интересный факт! Госстандарты нормируют лишь установку штепсельных разъемов и других электроэлементов относительно газопроводных конструкций, а также их размещение в детских учреждениях и помещениях с повышенной влажностью, таких как сауны, кухни и санузлы. Но даже в этих случаях регламентированы только минимальные расстояния от пола или до источника тепла и влаги.
Невозможно составить универсальную схему расположения розеток и выключатель, приходится действовать по обстановке
В жилых домах и квартирах размещение розеток призвано создать как можно больше комфорта жильцам. Если среди них есть маленькие дети, лучше приобрести модели с защитой или специальные заглушки.
Лучшим решением будут не простые “затычки”, которые дети могут вытащить, а заглушки с ключом
Ванная
Чтобы просчитать количество розеток в санузле, определите, сколько приборов требуется вам для комфортного использования ванной. Обычно это фен, бритва, стиральная машина, а также водонагреватель, полотенцесушитель и душевая кабина. Для техники, контактирующей с водой и влажным воздухом, требуются розетки с защитой IP44, которые снижают риск поражения током.
Для мощных электроприборов требуется отдельный вывод. Розетки для дополнительной техники можно прятать внутри ящиков тумбы, чтобы не мешали свисающие провода.
Чем выше розетка, тем безопаснее — это минимум 25 см от пола. Оптимальное расстояние от плинтусов и смесителей — 60 см. А электророзетку для стиральной машины лучше располагать в метре от пола.

Правила расположения электроточек в разных помещениях
Точки питания в ванной
Расположение розеток в ванной
Санузел — это помещение с повышенной влажностью
Поэтому здесь крайне важно знать, на какой высоте делать розетки и выключатели так, чтобы они не представляли опасности
Главные запреты — установка точек питания под раковиной, биде, ванной. От них нужно отдалить розетки минимум на 60 см, чтобы исключить случайное попадание воды. Выключатель желательно делать снаружи помещения или также отдалять от моечных предметов. Светильники и бра у зеркала желательно запитывать через шнурок или клавишу-выключатель с противоположной от раковины/ванны стороны.
Гостиная
Для телевизора и музыкального центра розетку лучше делать на высоте 90-140 см. Расстояние от пола до выключателя должно быть не менее 0,9 м. Если предусмотрена установка кондиционера, точку питания под него выводят на уровне 20-40 см от потолка.
Кухня
В этом помещении существует несколько стандартов размещения точек питания. Они варьируется в зависимости от используемой техники:
- Первый уровень. Подразумевает монтаж розеток на высоте 10-15 см от пола. Сюда подключается мощный духовой шкаф, электроплита, морозильная камера, холодильник, измельчитель отходов. Удобство такого расположения заключается в том, что после установки встроенной кухни подобраться к розеткам иным способом как через шкафчики или стол снизу будет невозможно.
- Второй уровень. Здесь монтируют целый блок розеток на уровне 110-130 см от пола в зоне кухонного фартука. Благодаря такому расположению удается удачно подключить электрочайник, блендер, микроволновую печь, миксер и другие мелкие бытовые приборы, которыми удобно пользоваться на рабочей поверхности.
- Третий уровень. Монтируют точки питания для подключения электрической вытяжки, телевизора, подсветки. Высота локации равна 2-2,5 метра от пола.
Выключатель располагают сразу у двери на удобной для пользователя высоте. Как правило, она приближена к евростандартам и равняется 90-110 см.
Спальня
Пример расположения электроточек у кровати
Комнате отдыха рекомендуется придерживаться таких норм:
- С обеих сторон двуспальной кровати (независимо от её размера) делают по двойной розетке и по двухклавишному выключателю. Их располагают в 70 см от плинтуса. Это позволяет отдыхающему человеку, не вставая с постели, управлять освещением, ставить на подзарядку мобильный телефон, читать книгу под ночником.
- Основной выключатель ставится в комнате сразу при входе.
- Если в спальне предусмотрен туалетный столик, по обе стороны от него на высоте 70-90 см делают по розетке для подключения бра или фена.
Детская
Ещё 10 лет назад специалисты рекомендовали располагать все точки питания максимально высоко в детских комнатах. Это обеспечивает безопасность ребёнка и исключает вероятность его контакта с электросетью. Сегодня все штепсельные розетки оснащены специальными запорными крышками. Чтобы их поднять, малышу требуются усилия. Поэтому такие розетки можно монтировать согласно европейскому стандарту.
Выключатель в комнате ребёнка делают по его росту. Желательно устанавливать регулируемую точку питания, при помощи которой можно увеличивать или снижать интенсивность искусственного освещения. Под ночник лучше установить отдельную стандартную розетку с крышкой.
Кабинет
Для дорогой техники нужно обеспечить систему защиты от перепадов напряжения
Это помещение требует большего количества точек питания. Как минимум один блок нужно расположить в непосредственной близости к столу. Через него будут подключены персональный компьютер, монитор, роутер, принтер и ксерокс, аудиоколонки. Блок располагают в 30 см от уровня пола. Сколько точек питания в него будет входить, мастер решает сам в зависимости от количества будущей техники.
Если в кабинете предусмотрена библиотека, необходимо смонтировать розетку под торшер. Его устанавливают в зоне чтения. Точку питания под торшер также делают на евро-уровне 0,3 м.
На свободной стене будут располагаться еще 1-2 розетки. Их используют для подключения временной техники.
Высота розеток от пола по ГОСТу
Подробная информация по проектированию внутренних электрических сетей содержится в Своде правил 31-110-2003, включающих расширенный список рекомендаций не только по месту установки, но и по их количеству.
Устройство электроснабжения (установка выключателей и розеток) выполняется с учетом представленных правил:
- В ГОСТ Р 50571.11-96 также входит требование по расположению на расстоянии розеток не менее 0,6 м от кабинки душа.
- Не рассматривается в целях нормировки расстояние от кондиционеров и стационарных кухонных электроплит до электрической розетки.
- Установление розеток в жилых комнатах происходит на расстоянии 4 м по периметру, в коридорах следует предусматривать розетки – на каждые 10 м2 площади, а в кухонных помещениях — не менее четырех.
- Заказчиком определяется количество лишь в том случае, когда установка идет в частных и одноквартирных домах.
От каких критериев зависит высота расположения розетки в спальне
Самый важный показатель – это удобство. Поэтому сперва определите, в каких целях будет использоваться розетка. Если только для светильника, то, может, лучше расположить её за тумбой? Но если вы рассматриваете вариант расположения над тумбочкой, тогда к разъёму должен быть удобный подход.
Располагать изделие стоит так, чтобы удобно было до него дотягиваться. Это самый важный показатель. Продумайте заранее, что будет находиться на тумбе, и не будут ли предметы загораживать доступ к электропитанию.
Второй критерий – это органичность вписывания в интерьер. Если вы не планируете скрывать данное устройство, позаботьтесь, чтобы оно органично вписывалось в комнату. Согласитесь, белое пятно с дырками посреди стены смотрится неуместно, а еще и подключённым проводом тем более. Хорошо, если розетка находится на уровне изголовья кровати.
Не пропустите: Как подключить заземление в щитке. Как сделать заземление правильно в квартире или частном доме
Определение высоты
Сегодня не существует единого стандарта, указывающего, на какой высоте крепить розетки. Для этого специалисты рекомендуют руководиться несколькими основными факторами:
- Безопасность. Монтируя розетки, следует использовать только качественные продукты, способные выдержать высокие нагрузки. Делать это нужно, соблюдая все правила прокладки кабелей и подключения их к основной электрической сети.
- Практичность. Все розетки должны располагаться таким образом, чтобы человек мог быстро и без усилий получить доступ к ним. При этом высота не играет роль, так же как и их количество. Многие точки могут использоваться для подключения различных источников. Это нужно учитывать, чтобы подсчитать, сколько нужно розеток для этой комнаты.

Что касается высоты, то специалисты рекомендуют располагать точки немного выше над поверхностями, где будут эксплуатироваться приборы (25 см над кроватью, и т. д. ). Если это розетки общего назначения, тогда их желательно крепить на расстоянии 50-100 см от пола. Не стоит монтировать устройства очень низко к полу, так как при влажной уборке существует риск попадания влаги внутрь. Также это не практично, так как заставляет человека нагибаться, чтобы включить часто используемый прибор.































